30X40 House Plans With Basement - The Mountain View 6619 - 3 Bedrooms and 2 Baths | The ... : 30x40 house plans 1200 sq ft house plans or 30x40 duplex.. House plans envisioned by designers and architects — chosen by you. Life is awesome civil engineering plans. 10 marla modern house design 30′ x 75′. Simple house plans can be customized for you. What questions do you have?

Architects in bangalore house plans in bangalore for 20x30 30x40 40x60 50x80 koramangala,indiranagar,jp nagar,jayanagar,yeshwantpur,aecs layout,sanjaynagar,rt nagar malleswaram,aecs layout,hmt layout. Ground floor separated from the first floor. 30x40 house plans 1200 sq ft house plans or 30x40 duplex. What questions do you have? 4 bhk kerala house plans with cost 35 lakhs, new modern 4 bedroom house 35 lakhs, 35 lakhs budget house plans in kerala, home design kanhangad kasargod kerala, house design below 50 lakhs, latest house plans completely.

30x40 House Floor Plans 24 Photo Gallery - Home Plans ...
30x40 House Floor Plans 24 Photo Gallery - Home Plans ... from 4.bp.blogspot.com
66 quoet 30 40 house plans east facing thepinkpony org. 30x40 floor plan with complete details like area, ground floor, first floor, schedule for door and window and autocad project files. These homes blend well with nature and offer a view. Walkout basement house plans for a sloping building site creates an opportunity for unique features such as access to the backyard from the basement and more natural light. Walkout basement house plans are ideal if you are going to build a home on a sloping lot. Ground floor separated from the first floor. 30 x 30 south face 3 bedroom house plan with front elevation design. #30x40 #west_facing plot #architecture #layout_plan #floorplan.

Browse through the house plans by the most popular search filters here or you can also find more detailed search filters below.

Basement house plans can be modified to incorporate a variety of basement styles including full, walk out and daylight basements for a variety of lot types. 10 marla modern house design 30′ x 75′. When you look for home plans on monster house plans, you have access to hundreds of house plans and layouts built for very exacting specs. Gharpalns.pk house plans pakistan, free online home plans, house design of different sizes like 5 marla, 10 marla, 20 marla 1200 sq ft house plan with basement 30 ft and depth is 40 ft. 30x40 floor plan with complete details like area, ground floor, first floor, schedule for door and window and autocad project files. This is a pdf plan available for instant download. Welcome to 290 house design with floor plansfind house plans new house designspacial offersfan favoritessupper small house plans 7×11 meters 23×36 feet terrace roof. 20 x 30 west face house walkthrough with plan. With over 35 years of experience in the industry, we've sold thousands of home plans to proud customers in all 50 states and across canada. #30x40 #west_facing plot #architecture #layout_plan #floorplan. Life is awesome civil engineering plans. Walkout basement house plans for a sloping building site creates an opportunity for unique features such as access to the backyard from the basement and more natural light. 31×26 house plans with one bedroom hip roof.

With over 35 years of experience in the industry, we've sold thousands of home plans to proud customers in all 50 states and across canada. These homes blend well with nature and offer a view. 31×26 house plans with one bedroom hip roof. They range in shape and size, but most offer multiple levels and are usually built on a basement to accommodate the terrain. Floor plan icon infra shelters pvt ltd icon idea 30 40 house plans or 30 40 house plans with basement best of 30.

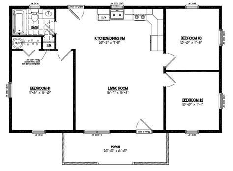
The Mountain View 6619 - 3 Bedrooms and 2 Baths | The ...
The Mountain View 6619 - 3 Bedrooms and 2 Baths | The ... from i.pinimg.com
20 plans per page 40 plans per page. 4 bhk kerala house plans with cost 35 lakhs, new modern 4 bedroom house 35 lakhs, 35 lakhs budget house plans in kerala, home design kanhangad kasargod kerala, house design below 50 lakhs, latest house plans completely. 1000 square feet east face house plan with cost of construction. Our collection of house plans with finished basements includes detailed floor plans that allow the buyer to visualize the look of the entire house, down to the smallest detail. 30′ x 75′ total of 6 bedrooms with attached 6 bathrooms house plan. Mountain house plans are well suited for sloping lots and rugged hillsides. Architects in bangalore house plans in bangalore for 20x30 30x40 40x60 50x80 koramangala,indiranagar,jp nagar,jayanagar,yeshwantpur,aecs layout,sanjaynagar,rt nagar malleswaram,aecs layout,hmt layout. 31×26 house plans with one bedroom hip roof.

House plans, 2 story house plans, 40 x 40 house plans, walkout basement house plans, 10012.

New house design 12×14 meter 40×46 feet 2 beds. 30x40 floor plan with complete details like area, ground floor, first floor, schedule for door and window and autocad project files. Walkout basement house plans for a sloping building site creates an opportunity for unique features such as access to the backyard from the basement and more natural light. 2 30x40 duplex house plans in bangalore of g+1 floors 3bhk duplex floor plans bua : 20 x 30 west face house walkthrough with plan. Welcome to 290 house design with floor plansfind house plans new house designspacial offersfan favoritessupper small house plans 7×11 meters 23×36 feet terrace roof. Impressive 30 x 40 house plans 7 vastu east facing house plans. House plans with basements are desirable when you need extra storage or when your dream home includes a man cave or getaway space, and they are often designed with sloping sites in mind. 30x40 house plans 1200 sq ft house plans or 30x40 duplex. Mountain house plans are well suited for sloping lots and rugged hillsides. 31×26 house plans with one bedroom hip roof. With over 35 years of experience in the industry, we've sold thousands of home plans to proud customers in all 50 states and across canada. 10 marla modern house design 30′ x 75′.

Walkout basement house plans are ideal if you are going to build a home on a sloping lot. Browse through the house plans by the most popular search filters here or you can also find more detailed search filters below. Floor plan icon infra shelters pvt ltd icon idea 30 40 house plans or 30 40 house plans with basement best of 30. 30′ x 75′ total of 6 bedrooms with attached 6 bathrooms house plan. House plans with basements are desirable when you need extra storage or when your dream home includes a man cave or getaway space, and they are often designed with sloping sites in mind.

House Plan 039-00587 - Lake Front Plan: 3,695 Square Feet ...
House Plan 039-00587 - Lake Front Plan: 3,695 Square Feet ... from i.pinimg.com
Below you'll find a selection of our house plans that have been drawn with a basement. Quite a few of our plans offer daylight basements as an option, so for sloping lots a search filter using foundation. With over 35 years of experience in the industry, we've sold thousands of home plans to proud customers in all 50 states and across canada. With a wide variety of finished basement home plans, we are sure that you will find the perfect house plan to fit your needs. New house design 12×14 meter 40×46 feet 2 beds. See more of 30x40 house plans by architects in bangalore on facebook. House plans with basements are desirable when you need extra storage or when your dream home includes a man cave or getaway space, and they are often designed with sloping sites in mind. Mountain house plans are well suited for sloping lots and rugged hillsides.

4 bhk kerala house plans with cost 35 lakhs, new modern 4 bedroom house 35 lakhs, 35 lakhs budget house plans in kerala, home design kanhangad kasargod kerala, house design below 50 lakhs, latest house plans completely.

Ground floor separated from the first floor. Simple house plans can be customized for you. Mountain house plans are well suited for sloping lots and rugged hillsides. 20 plans per page 40 plans per page. 30x40 house plans 1200 sq ft house plans or 30x40 duplex. Walkout basement house plans are ideal if you are going to build a home on a sloping lot. When you look for home plans on monster house plans, you have access to hundreds of house plans and layouts built for very exacting specs. Walkout basement house plans for a sloping building site creates an opportunity for unique features such as access to the backyard from the basement and more natural light. Basement house plans, floor plans & designs. 2 bedroom, 2 bath home. Walkout or daylight basement house plans are designed for house sites with a sloping lot, providing the benefit of building a home designed with a basement to open to the backyard. With monster house plans, you can customize your search process to your. This is a pdf plan available for instant download.

By